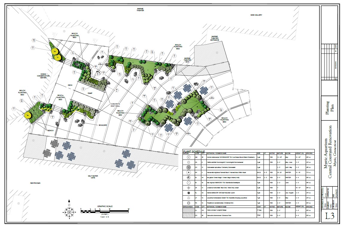
This design meets the goals to provide better user circulation, cleaner site lines, and more informal seating to the central courtyard, while strengthening the overall character of the campus landscape. In order to increase focus on the Ocean Conservation Center, the view from the entry is framed by the creation of seat and planter walls as well as defined bench and picnic table nodes. Visitor experience is visually enhanced through the visual cohesion of repeated materials and patterns and the inclusion of shade sails that are a nod to Mystic’s nautical history. Construction has started with a planned completion by Memorial Day 2023.



